Teknik Motor Samhälle Spel Popkultur Fritid Tjock Tester Dagens fråga Tipsa! Skaffa Feber+ Mitt konto
Hetaste
Senaste
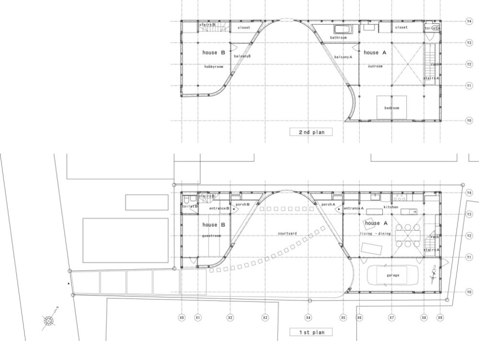
Två hus blev ett Två hus blev ett Återigen Naf Architect & Design Räcker inte ett hus till får man väl skaffa två och se till att de ligger tillräckligt nära varandra så att man kan länka dem samman till ett. Det är i alla fall vad en familj i Kanagawa i Japan har gjort med hjälp av Naf Architect & Design. archdaily.com Hem, Inspiration, hus, arkitektur, design, naf architect & design Via arch daily Bild till bildspel Bild till bildspel Bild till bildspel Bild till bildspel Bild till bildspel Bild till bildspel Bild till bildspel Bild till bildspel Bild till bildspel Bild till bildspel Bild till bildspel Bild till bildspel Bild till artikel Bild till artikel Bild till artikel Bild till artikel Bild till artikel Bild till artikel Bild till artikel Bild till artikel Bild till artikel Bild till artikel Bild till artikel Bild till artikel
37.9° 0 Lotta Madetoja Lotta Madetoja
tis. 23 feb 2010, 12:57
+ Per månad 39 kr Betala löpande per månad. Ingen bindningstid. Starta prenumeration Per år 299 kr Enklast och billigast, bara 25 kronor i månaden. Betala löpande per år. Ingen bindningstid. Prova 14 dagar gratis innan du bestämmer dig. Starta gratis provperiod Engångsköp 349 kr Slipp återkommande betalningar, betala ett år i taget. Betala med kort eller Swish. Köp utan prenumeration